Acoplamiento hidrodinámico con tambor Barke
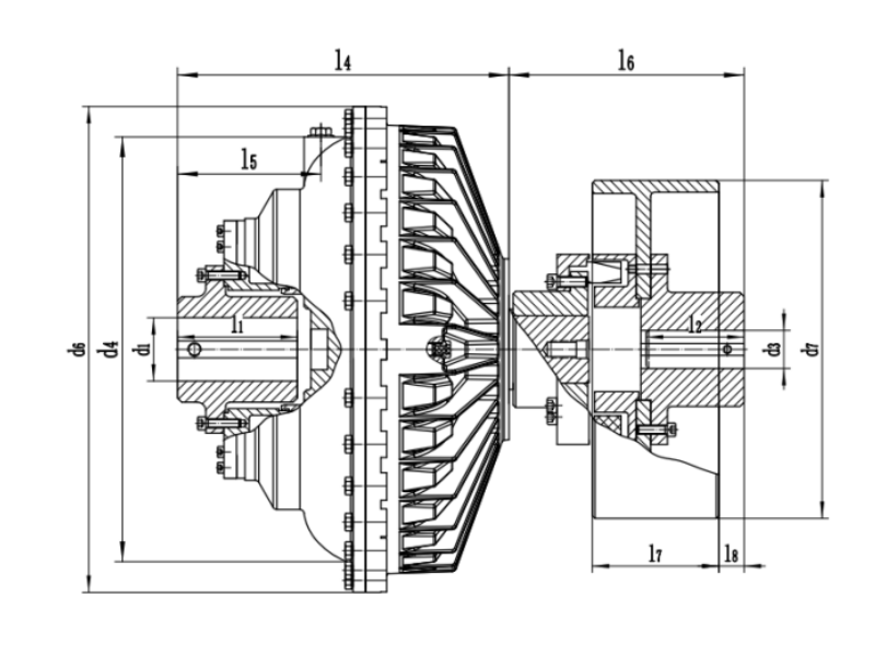
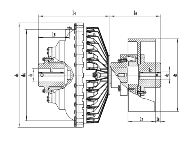
1. El acoplamiento hidrodinámico con tambor o disco de freno está equipado con tambor o disco de freno y acoplamiento flexible tipo H en el extremo de salida.
2. Al seleccionar el acoplamiento hidrodinámico, se debe tener en cuenta que la distancia desde el extremo del eje hasta el extremo del tambor del freno afectará la posición de instalación del freno.
3. El tamaño del tambor de freno y del disco de freno se puede negociar por separado.
- KUDOSWORLD
- 6-10 SEMANAS LABORABLES
- 2.000 JUEGOS/AÑO
- información
- vídeo
- descargar
Acoplamiento hidrodinámico con tambor Barke

Materiales recomendados para tambor de freno y disco de freno.

Tipos de acoplamiento hidrodinámico KUDOSWORLD
Tipo B
· Acoplamiento hidrodinámico con tambor de freno
Ex):HR-B, HR-CB, HR-CCB, HR-DB


Características, aplicaciones y propósito de diseño del acoplamiento hidrodinámico con tambor de freno
Características
Acoplamientos de fluidos (Turboacoplamiento):
Inicio suave:Reduce el impacto mecánico, alargando la vida útil del equipo.
Protección contra sobrecarga:Evita daños por sobrecargas en la transmisión de potencia.
Regulación de velocidad:Logra el control de velocidad ajustando el volumen del fluido.
Tambor de freno:
Frenado rápido:Proporciona un rendimiento de frenado eficiente.
Estructura compacta: Ahorra espacio de instalación.
Alta confiabilidad:Garantiza el funcionamiento estable del sistema de frenado.
Aplicaciones
Equipos de elevación:Se utiliza en grúas, polipastos, etc., para garantizar un arranque suave y un frenado confiable.
Sistemas de transporte:Se aplica en transportadores de cinta, etc., para proporcionar protección contra sobrecarga y regulación de velocidad.
Maquinaria minera:Se utiliza en trituradoras, molinos de bolas, etc., para reducir los riesgos de sobrecarga y choque de arranque.
Equipos industriales:Se utiliza en ventiladores, bombas, etc., para lograr un arranque suave y ajuste de la velocidad.
Propósito del diseño
Seguridad:Garantiza una parada rápida del equipo en situaciones de emergencia mediante el tambor y el disco de freno.
Eficiencia:Mejora la eficiencia de transmisión de potencia con acoplamiento hidrodinámico, reduciendo la pérdida de energía.
Fiabilidad:Mejora la estabilidad operativa y la durabilidad, reduciendo las tasas de fallos.
Fácil mantenimiento:Simplifica los procedimientos de mantenimiento y reduce el tiempo de inactividad.
El diseño del acoplamiento hidrodinámico con tambor y disco de freno busca mejorar la seguridad, eficiencia y confiabilidad de los equipos. Estos productos se utilizan ampliamente en equipos de elevación, transporte, minería e industriales.
La empresa cuenta con la certificación SGS y su proceso de fabricación cumple con las normas ISO 9001, aplicables a las normas GB, ISO y DIN, así como a las normas API, ASME y AS cuando es necesario. Los componentes clave se adquieren de marcas líderes a nivel mundial para garantizar la calidad del producto.
